歩こう!! 神奈川 【横浜古民家をたずねて】(見学会ブログ連載NO 7)
歩こう!! 神奈川 【横浜古民家をたずねて】(見学会ブログ連載NO7)
【横浜市内には10箇所の古民家があります。2025年は古民家をたずねます】第7回は、《一度は行かれたでしょうか?都筑民家園》です。市内小学校6年生は社会見学で〈大塚・歳勝土遺跡〉を訪れます。会員の皆様も引率で行かれたかも知れません。写真は〈大塚遺跡~弥生期の竪穴復元住居〉と〈古民家の全景〉です。

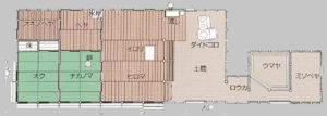
《都筑民家園》には、旧長沢家住宅を中心に、屋敷林、茶室、竹林、池、庭などがあります。旧長沢家住宅の主屋及び馬屋は、1997年に移築され、貴重な歴史的建築物として、横浜市指定有形文化財に指定されました。長沢家は、横浜市歴史博物館から近い都筑郡牛久保村(現在の都筑区牛久保町)にあった旧家で、江戸時代の一時期、村方三役の名主役や組頭を務めていました。建築年代は、新しい形式も取り入れられているものの、柱の一部にチョウナ仕上げが見られること、土間境の柱が大黒柱となっていないこと等の古い形式を残しているため、市内に残っている民家の中ではかなり古いものであることが分かっています。長沢家が建っていたかつての環境は、丘陵地の裾にあり、屋敷の南側が谷戸田の水田で、その東に肥料小屋の「しもや」、西南に物置、東南に車庫があって、東北には竹藪、北側には太いケヤキの老木がありました。屋敷は(図面参照)主屋と馬屋から成り立っていて、ロウカでつながれ、棟を揃えて連続して建てられています。主屋の柱は一間毎にたてられ、各柱間には板戸2枚と障子戸1枚が入っています。名主の役宅としての客間があり、2室とも畳敷きで天井が張られ、オクには奥行3尺の床の間(写真:床の間)がついています。当時の家格の高さが分かります。広い板敷き間は、家族の日常の間として、食事や団欒、親しい人の接客、また夜なべ仕事などに使われました。広い土間は、収穫した穀類の調製などの作業の場として、農家にはなくてはならない空間でした。土間の奥が炊事をするダイドコロです。

住宅の隣には《茶室》もありました。残念ながら特別イベントの時のみで、内覧できませんでしたが、日本の伝統文化を多くの方々に親しんでもらいたいと願うある市民の発意に賛同した地域住民たちの熱意で生まれまたようです。2010年5月に建てられた数寄屋風茶室です。
《民家園イベント》には、文化体験行事・お茶室行事・アート月間・しの笛の朝・南京玉すだれ・囲炉裏端のお話会・手打ちそば・はぎれ草履講習会・楽しく着物の着付体験などお楽しみ満載です。[詳細は、都筑民家園ホームページを参照ください]
利用案内:休館日は、第2と第4月曜日(休日の場合、翌火曜日)、年末年始は休み。開園は9~17、無料。所在地は都筑区大棚西2番。
行き方:地下鉄ブルーライン・グリーンライン センター北駅 徒歩10分
次回更新予定:7月25日頃 取材日 7月8日
◎「令和7年度の予定について」見学会は次の予定で実施いたします。多数の皆様のご参加をお待ちしております。
1回目;【秋の鎌倉を歩く歴史探訪】10月3日(金)9:45~12:15
2回目;【横浜再発見ゆるり散歩】12月5日(金)9:45~12:15